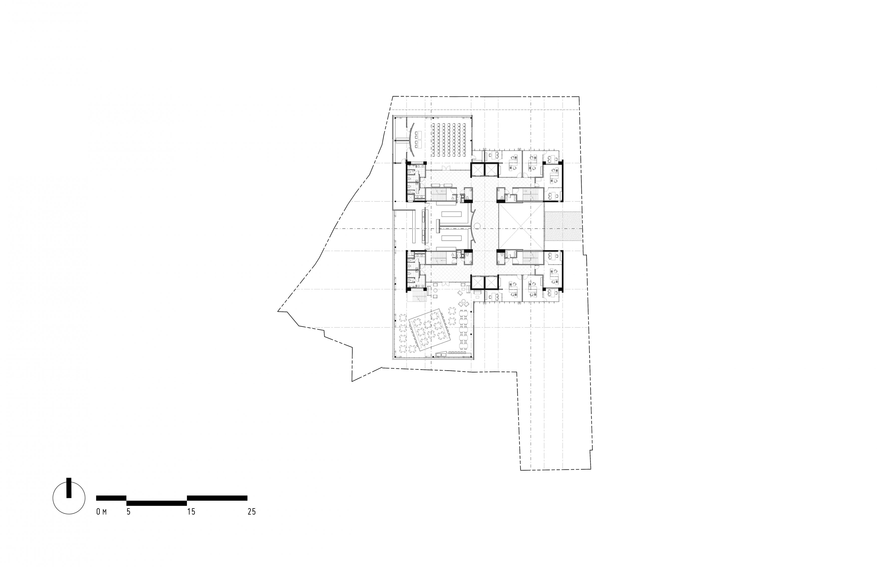
The Legislative Assembly of Costa Rica project was based on the people, on the state and the law, thus creating three main axis of a democratic society. The Legislative Assembly pretends to reiterate the value of the people inside the democratic participation in the country, making the proposal of the project an opportunity to open communication and transparency amongst the city habitants and the beings that dictate the law in Costa Rica. The urban intervention consists of having a cloak that covers and generates circuits inside the different volumes that consist of the project, public space and pedestrian mobilization; all of these consist as promoters of cultural activities and social interest in the immediacy of the proposal, giving it space for urban activity.
Concurso – Asamblea Legislativa
Concurso – Asamblea Legislativa
Location: San José, San José, Costa Rica
Square meters: 59,000 m²
Status: Design
Typology: Institutional
Date: 2013
Scale: Horizontal
Concurso – Asamblea Legislativa













