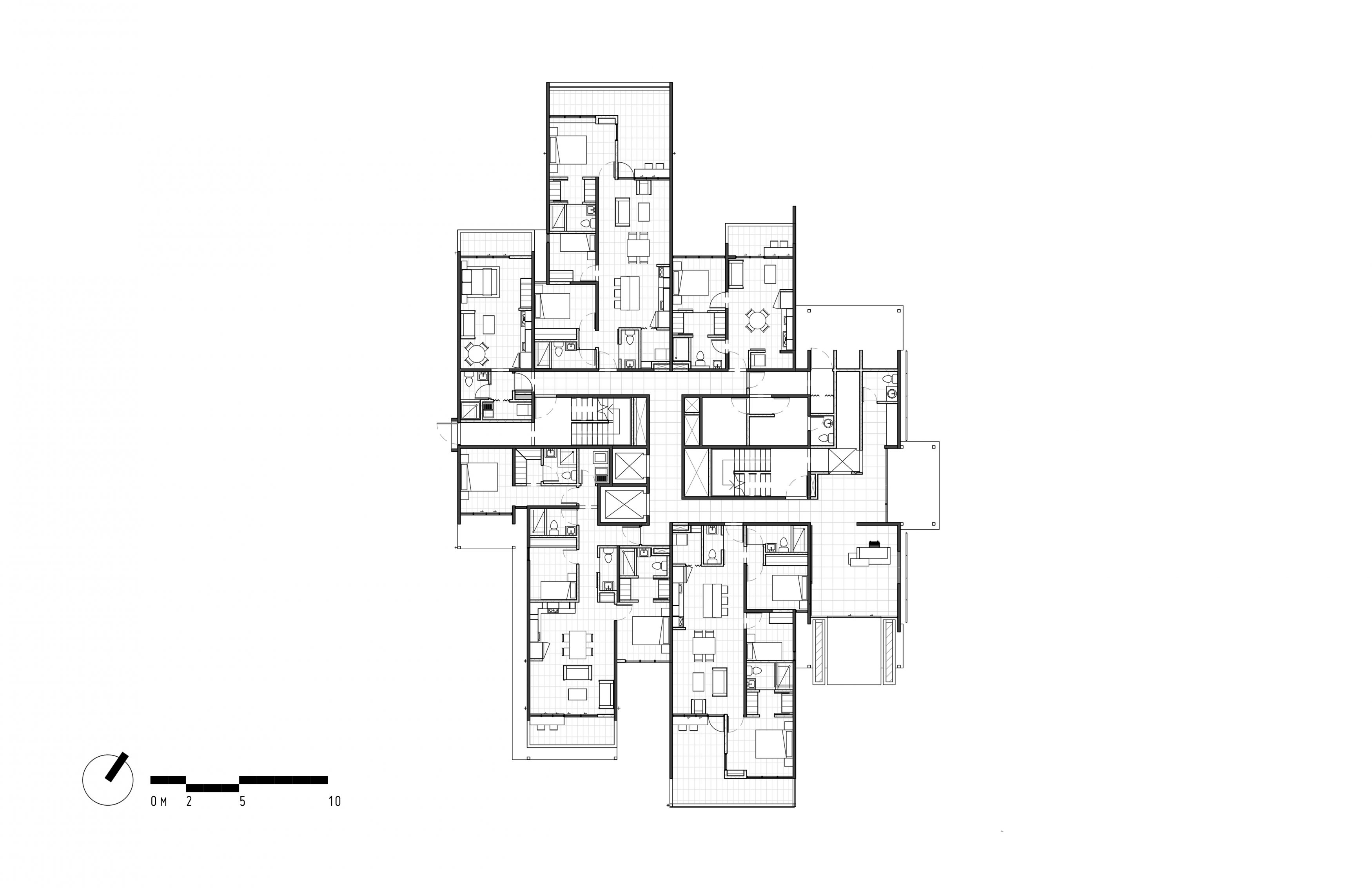
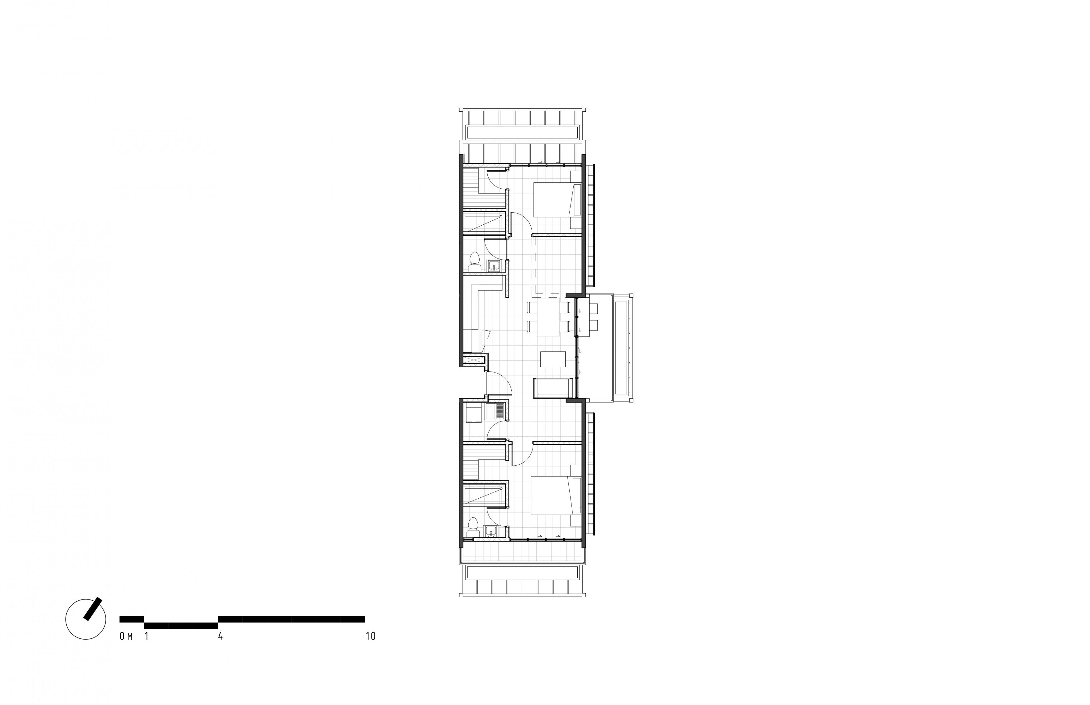
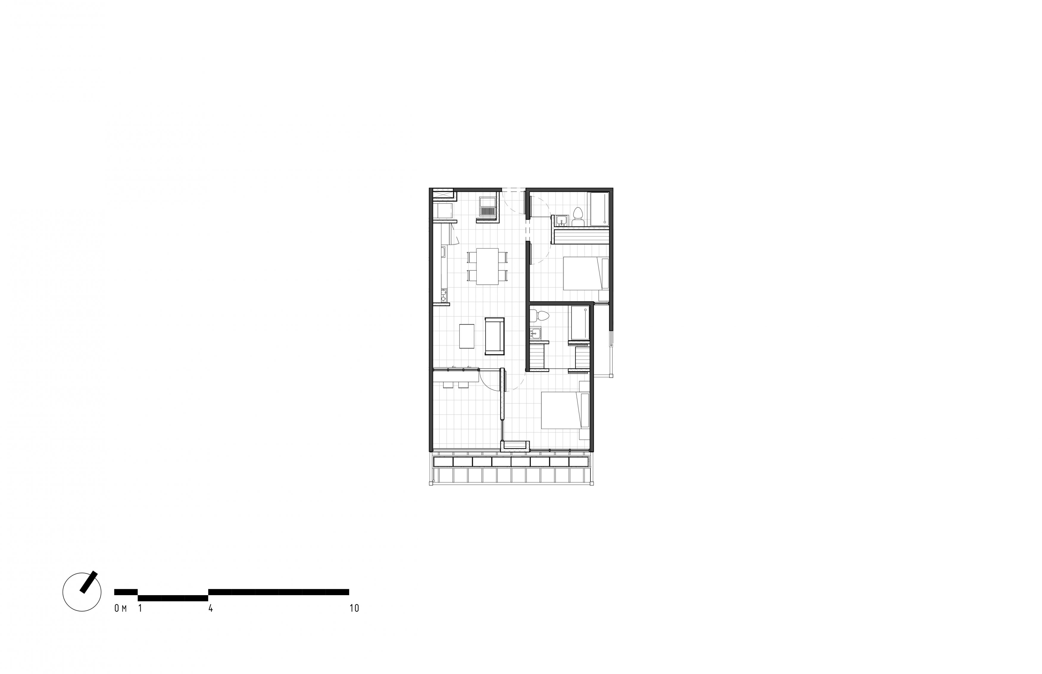
Qalma is a vertical complex in which a reduced footprint is developed. This leaves a great percentage for green areas, which already existed in the property. By growing vertically, 90% of the totality of trees that were already in the lot are conserved. Two buildings are oriented from the noreast to southeast, therefore managing that each short façade of each of the buildings is perpendicular to the wind’s direction. This favors the natural and direct ventilation for each apartment. The design concept looks to generate a transition between the interior and the exterior of the apartment, which is expressed through the terraces that are part of the social area.
The social areas of the project are distributed in three different levels of the project, which at the same time, are interconnected. This creates a circuit of amenities in a vertical and horizontal way, achieving dynamism.


























