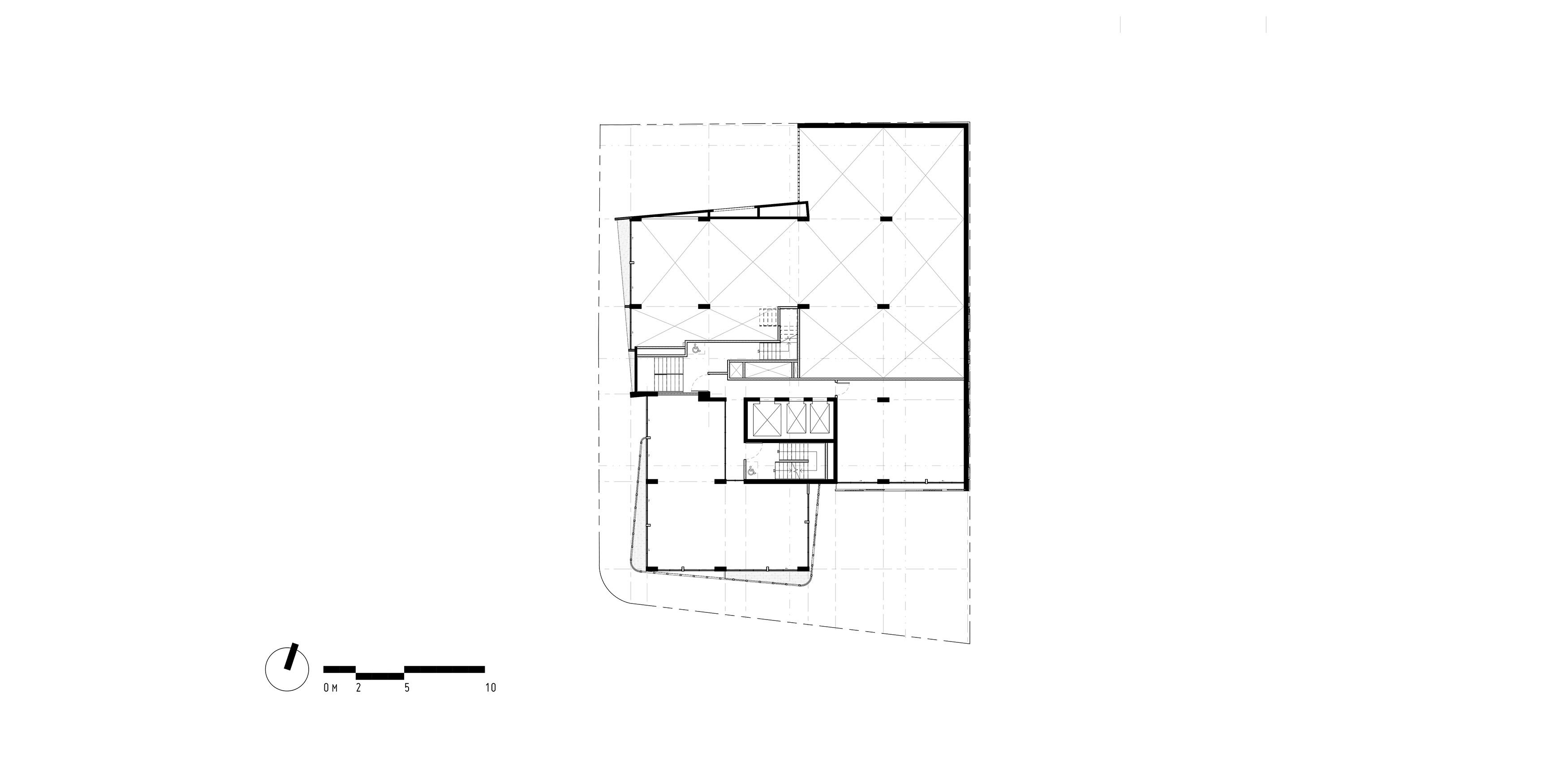
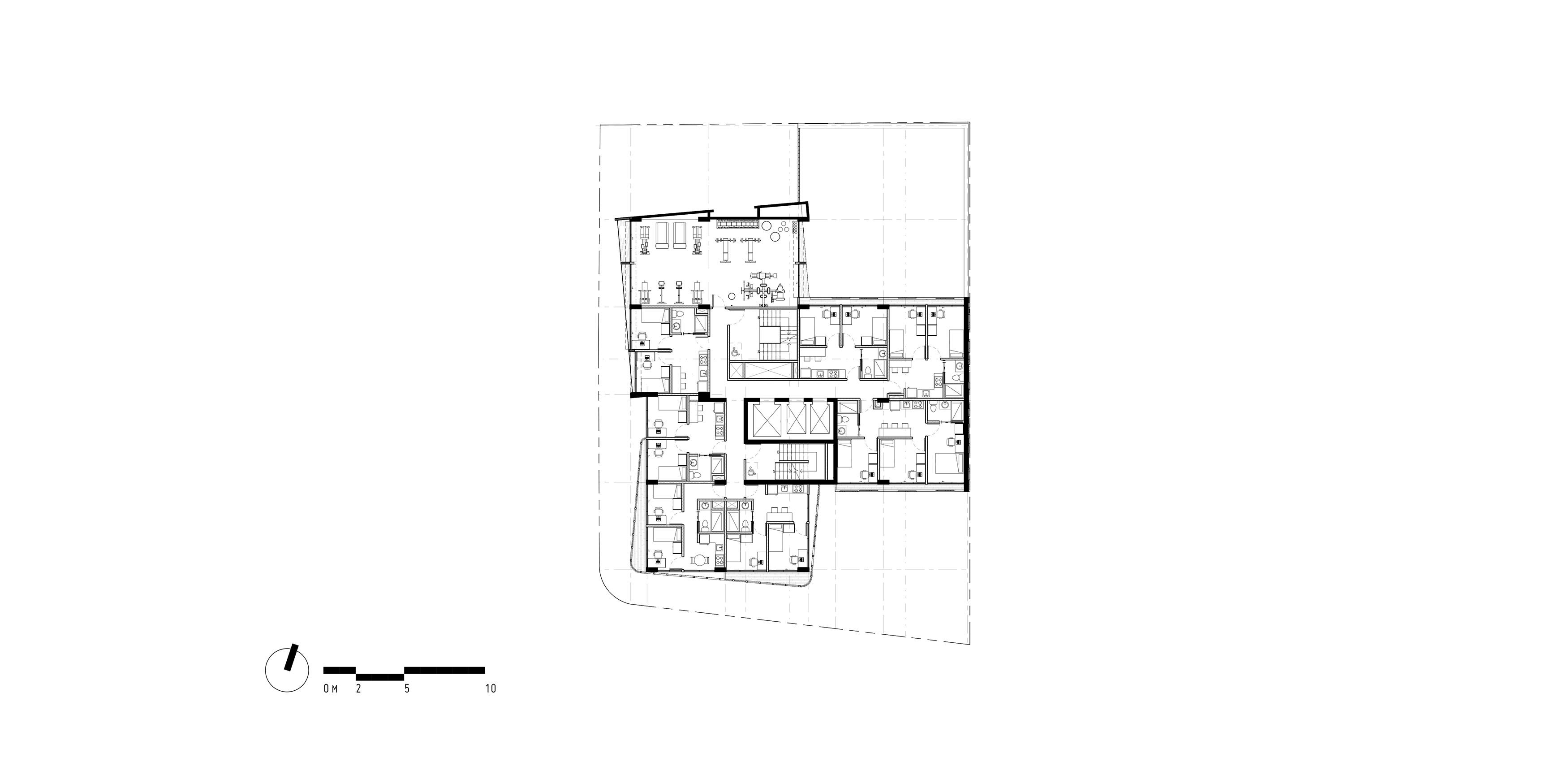
The Villa Universitaria project was designed to accommodate the college student’s needs. It proposes the inclusion of recreational, green, sport and study areas for the students. Its vertical structure promotes an upward urban growth and counterparts the overpopulation in horizontal urban areas. It includes methods to minimize the use of energy such as taking advantage of the natural lighting.
Villa Universitaria
Villa Universitaria
Location: San José, San José, Costa Rica
Square meters: 12,000m²
Status: Design
Typology: Residential
Date: 2016
Scale: Vertical
Villa Universitaria





