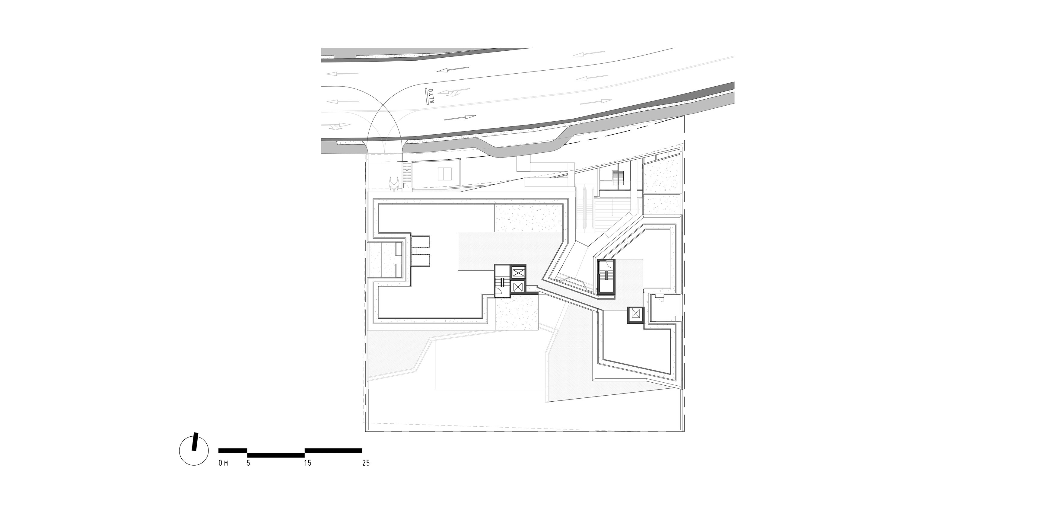
The project aims to respond to the residential and commercial need that exists for the area. Offering areas for convenience trade and commercial premises with green plazas and a view of the city of San José, it also offers one and two bedroom residences with luxury finishes.
ADARA
ADARA
Location: Guayabos, San José, Costa Rica
Square meters: 20,770 m2
Status: Design
Typology: Mixed Uses
Date: 2018
Scale: Horizontal
ADARA


















