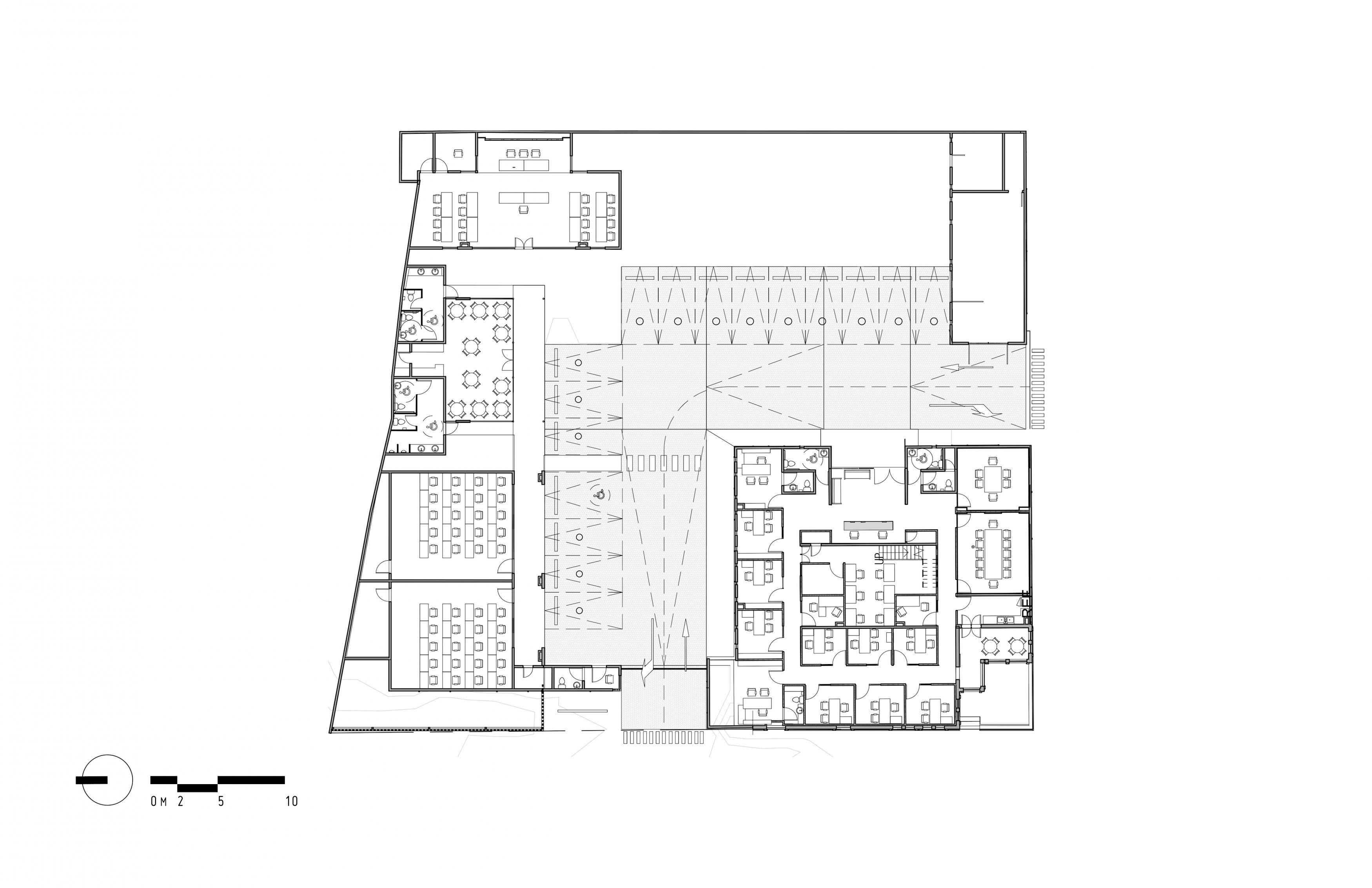
The Corporate Center Jorge Volio is a complex of offices for lawyers who support the path and value of the profession through the exposure of the materials in its purest form, highlighting paths with artificial lighting and allowing access to natural light. The space of the site was determined with the intentions of composing scenarios that adapted to the execution of tasks, obligations, duties and charges. The aesthetics of an old household that lied on the site was compromised, since the architecture was transformed and adapted to the specific quality of the context; making the restoration a combination between “the old and the new”.
Centro Corporativo Hulbert Volio
Centro Corporativo Hulbert Volio
Location: Santa Ana, San José, Costa Rica
Square meters: 950 m²
Status: Built
Typology: Office
Date: 2013
Scale: Horizontal
Centro Corporativo Hulbert Volio














