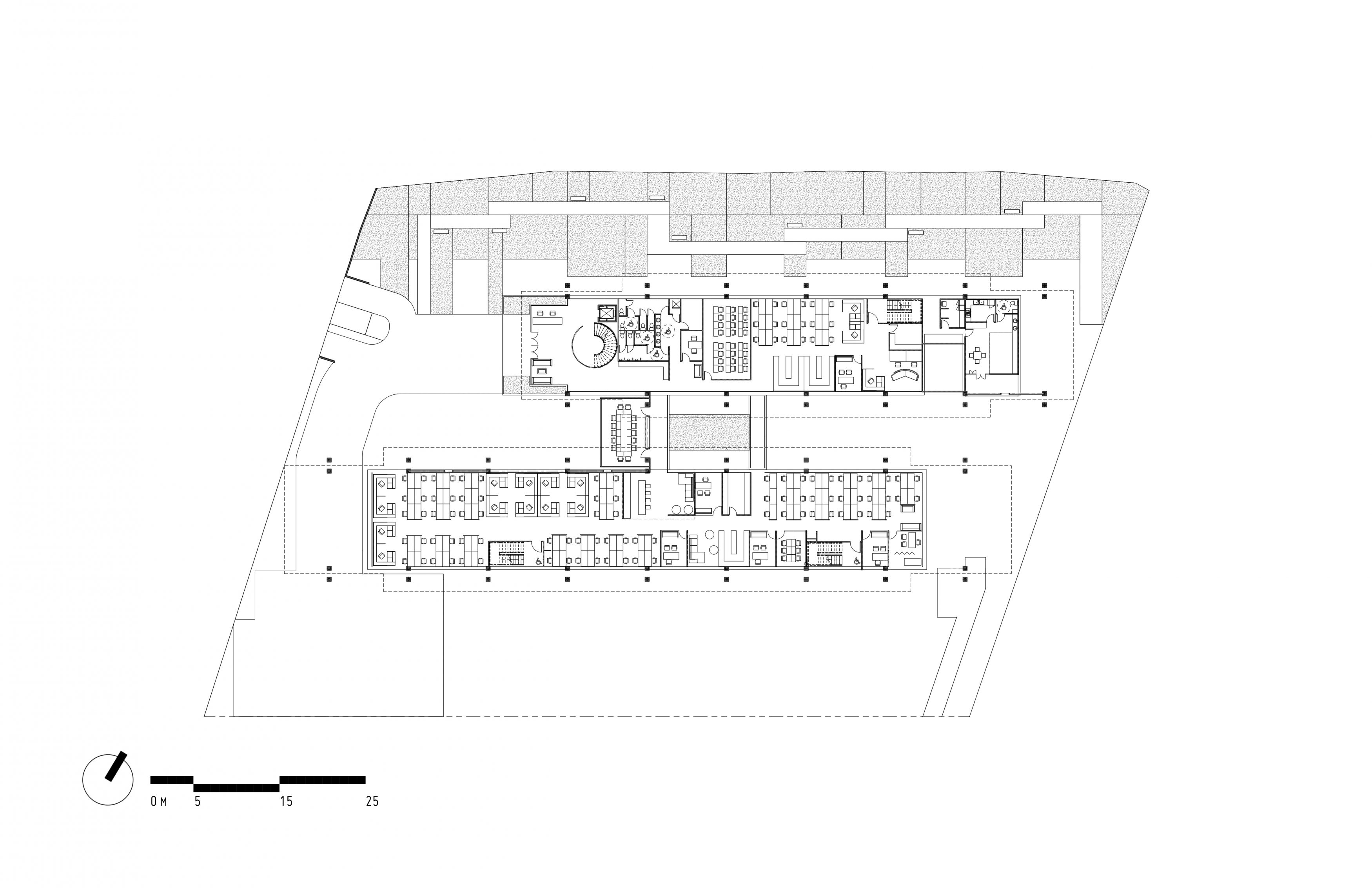
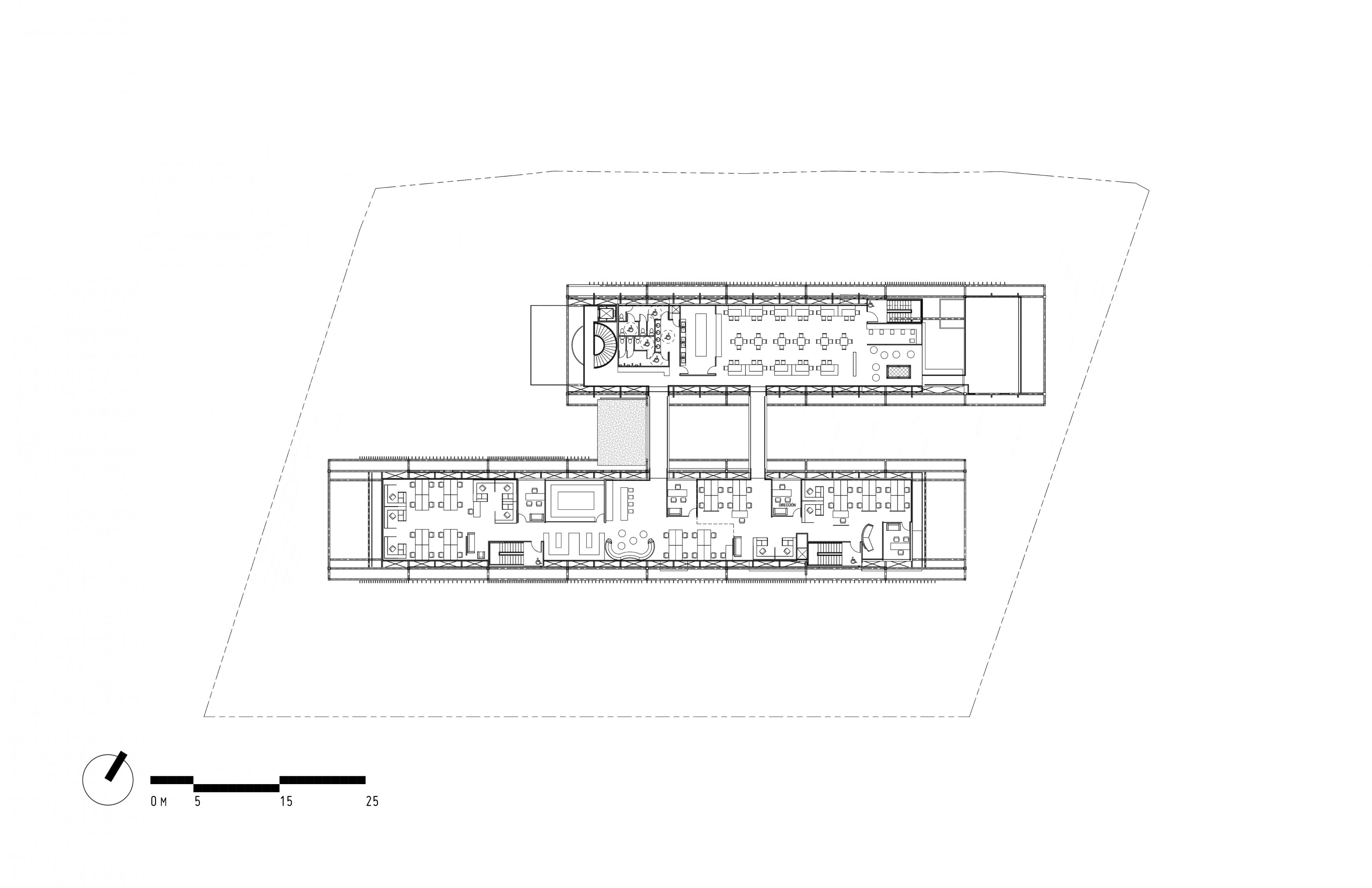
Competition design for the new offices of Café Britt. This project aims to cover several measures to reduce the carbon footprint that a project of this nature could generate. This is done through solutions such as the implementation of mechanical equipment with high levels of reduction in water consumption and to avoid installing air conditioning system since the design of the Café Britt Offices manage to maintain ventilation at optimum performance. Also, the design of the building maximizes the use of natural light as a way to contribute to the cause of reduction of energy consumption.
Concurso – Oficinas Café Britt
Concurso – Oficinas Café Britt
Location: Barva, Heredia, Costa Rica
Square meters: 6,300 m²
Status: Design
Typology: Office
Date: 2013
Scale: Horizontal
Concurso – Oficinas Café Britt










