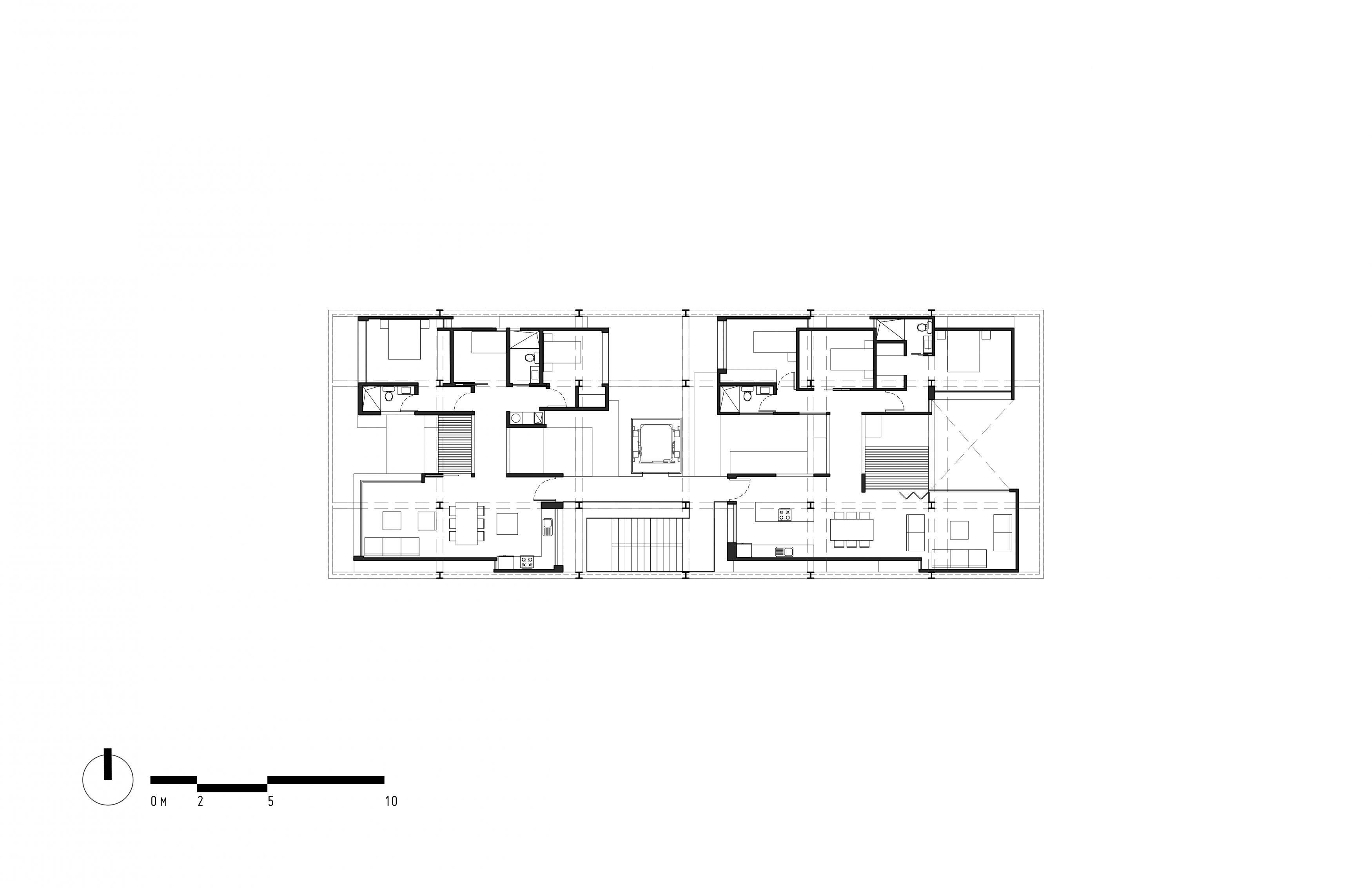
An urban tree was the foundation of the concept for this building, since it contains an area of circulation from which the vegetation that emerged from the water access hangs as an analogy of the creation that comes from water. All of this generates the vitality of the design. Basic repetitive modules are used to generate all the façade design. It is a building that integrates to its environment thanks to the vast urban space in the front, in the terrace and bicycle parking spaces, thus generating coexistence between the habitants of the space and the community.
Natus
Natus
Location: Cuidad de Guatemala, Guatemala
Square meters: 2,700 m²
Status: Design
Typology: Residential
Date: 2012
Scale: Vertical
Natus












