Projects About News Contact
i
01 – 14
Poas Volcano Lodge

Poas Volcano Lodge

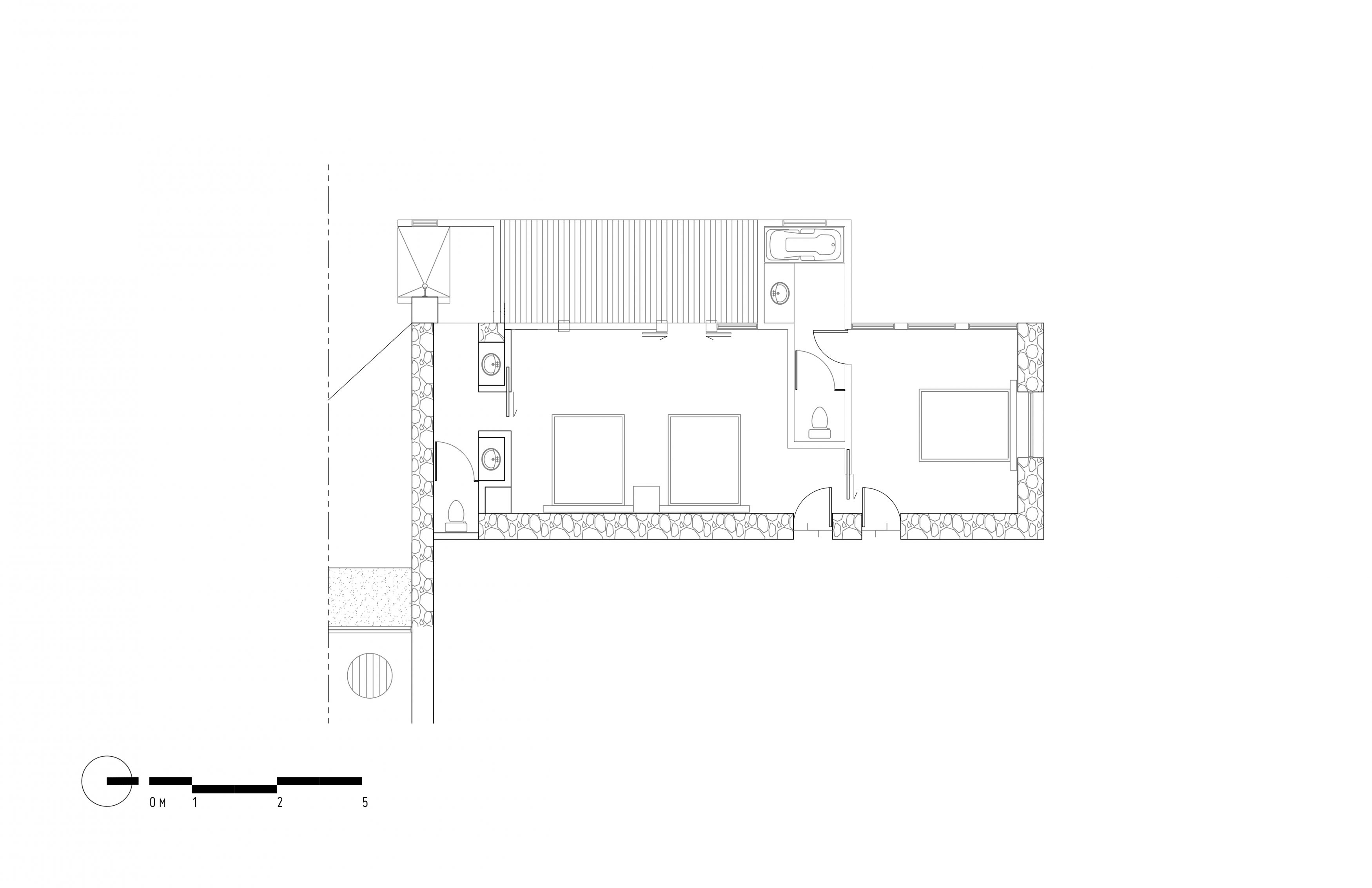
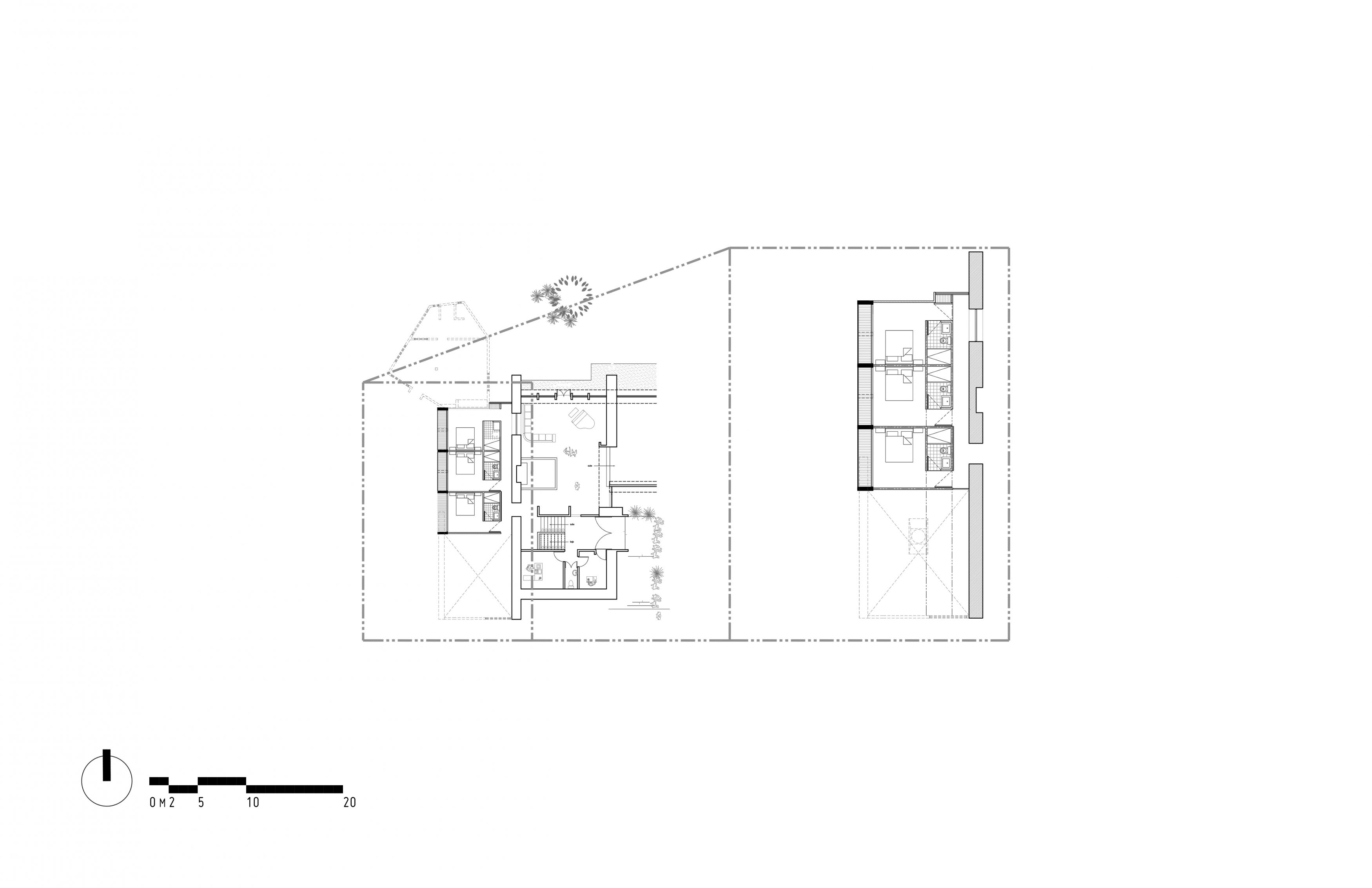
The implementation of debris and natural elements, due to the Cinchona earthquake in 2009, was the premise for the reuse of construction materials that were used in the renovation of the Hotel Poas Volcano Lodge, generating a reactivation of different elements and spaces under the same principle of re-use. At the same time, aspects of energy saving, saving on water consumption and reduction of artificial lighting were contemplated, creating a warm and pleasant atmosphere for its guests.