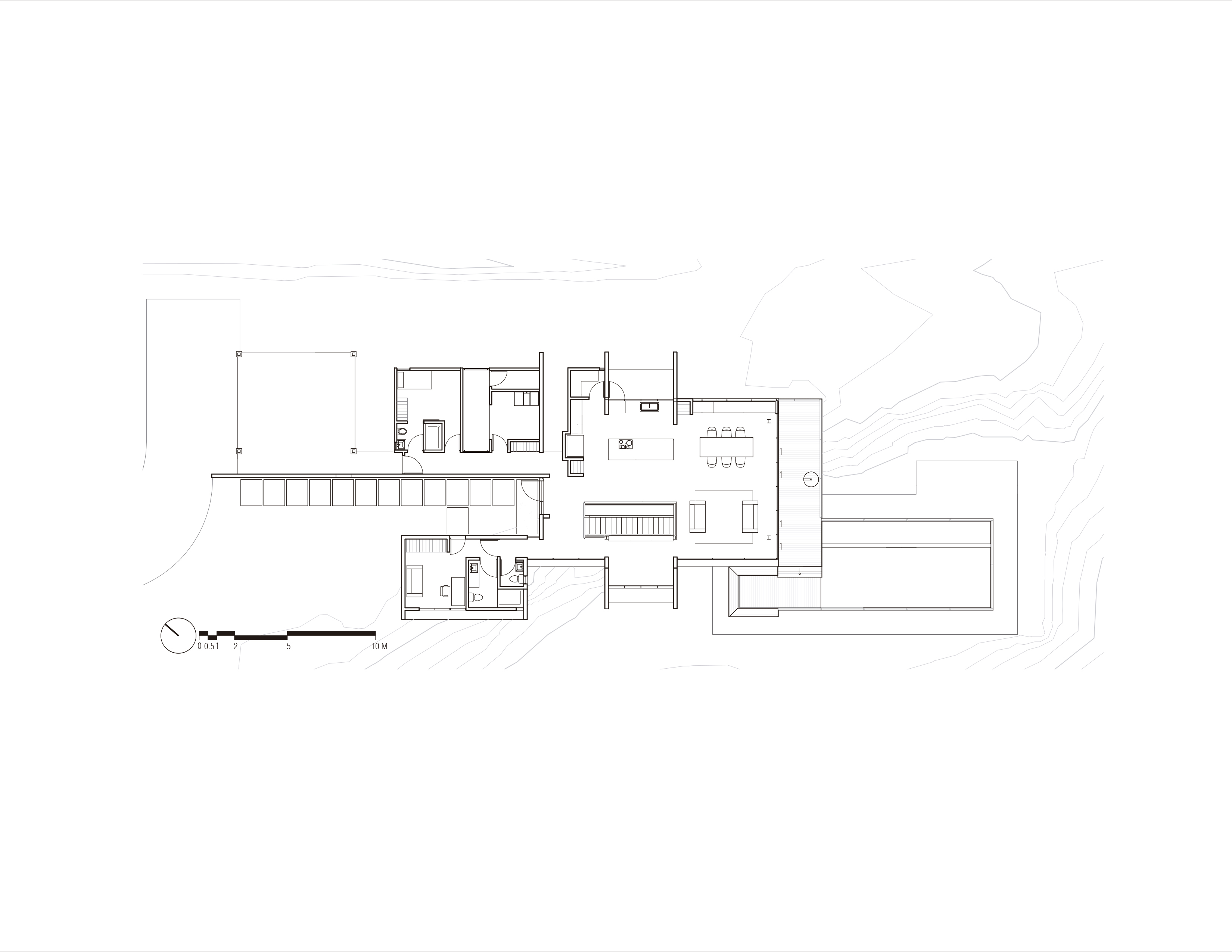
To inhabit a house is to use each of its spaces, not only according to its specific purpose, a kitchen will not be used only for cooking, a room will not be just for sleeping, a hallway will not be a linear path. Experiencing a home like Murray Music includes exploration, giving another meaning and other use to spaces that normally have specific functions.
The geometry of the house plays a fundamental roll for the understanding and coherence of the various programs involved in the project, through the scale, subtraction and addition granted by the multiple forms.























